Дом, 120 м², 1 эт.

Севастополь, СОТ Южный

11 300 000 руб.

94 167 руб./м²
Дом, 120 м², 1 эт.

Описание Объект №2942

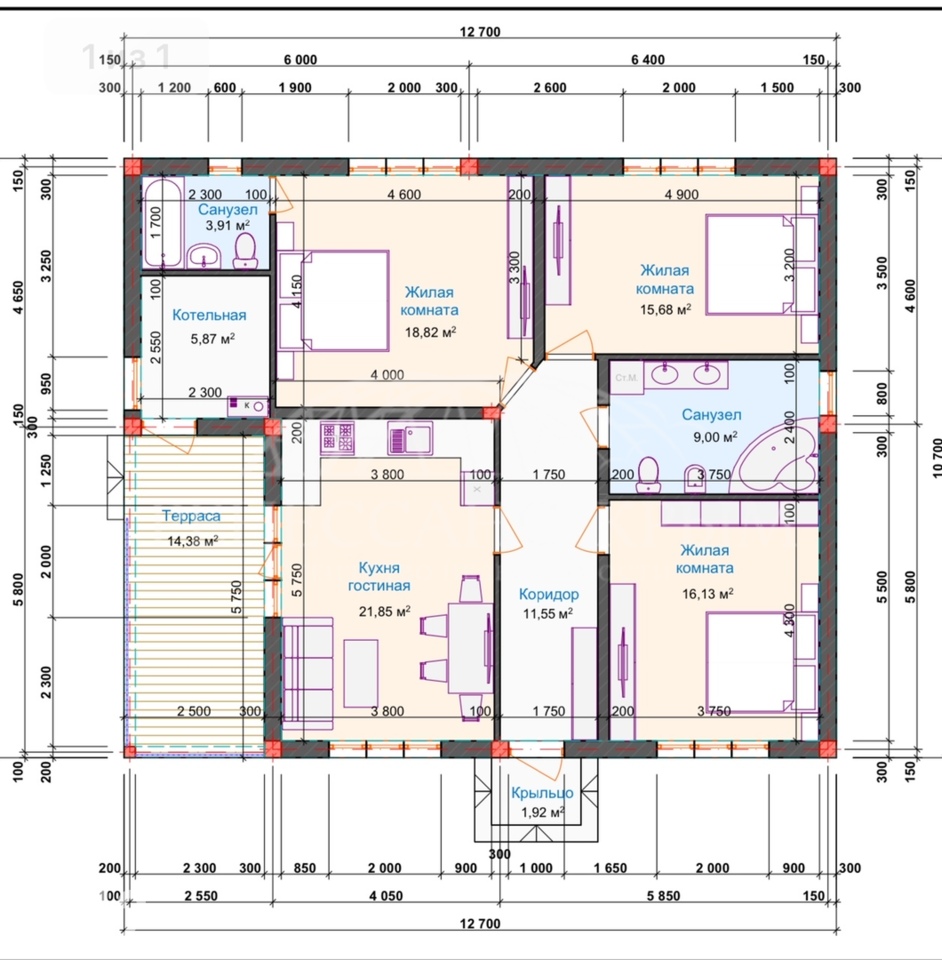
🏡 Планировка — то, что ищут покупатели.
Дом продуман для комфортной жизни семьи или сдачи в аренду:
— 3 отдельные комнаты:
15,7 м² / 16,1 м² / 18,8 м².
— Просторная кухня-гостиная — 21 м².
— Дополнительная комната / зона отдыха — 22 м².
— Котельная — 5,8 м².
— 2 санузла: 3,9 м² и 9 м².
— Терраса — 14,4 м².
👉 Отлично подходит как для постоянного проживания, так и для сдачи.
⚡ Коммуникации и удобства:
— Электричество — 15 кВт.
— Собственная скважина.
— Канализация — септик.
— Участок полностью огорожен.
💰 Почему это выгодно
✔ Дом у моря всегда в цене.
✔ Высокий спрос на аренду в сезон.
✔ Возможность использовать как дачу + сдача.
✔ Подходит для круглогодичного проживания.
🌅 Формат использования
— Летний отдых у моря.
— Постоянное проживание в спокойном районе.
— Инвестиция с доходом от аренды.
Такие дома долго не задерживаются на рынке — особенно у моря.
Если ищете ликвидный объект с понятной окупаемостью — это он.


  • Площадь участка :

  • Тип :

  • Площадь :

  • Этажность :

  • Водопровод :

  • Отопление :

  • 4,2 сот.

  • Дом

  • 120 м²

  • 1

  • Подключен

  • Автономное электро

  • Тип участка :

  • Материал дома :

  • Ремонт :

  • Кол-во комнат :

  • Газ :

  • Ведение садоводства

  • Газобетонный блок

  • Черновая

  • 3

  • Есть возможность

Карта СОТ Южный

Похожая недвижимость

Дом, 100 м², 1 эт.
  • Продажа
11 300 000 руб.

Дом

Дом, 100 м², 1 эт.

садовое товарищество Чайка-1, Центральная улица

Дом, 64 м², 2 эт.
  • Продажа
10 500 000 руб.

Дом

Дом, 64 м², 2 эт.

садовое товарищество Полюшко, 211